View larger PDF Open PDF 

Your device does not support viewing of this PDF. Tap here to download it instead.

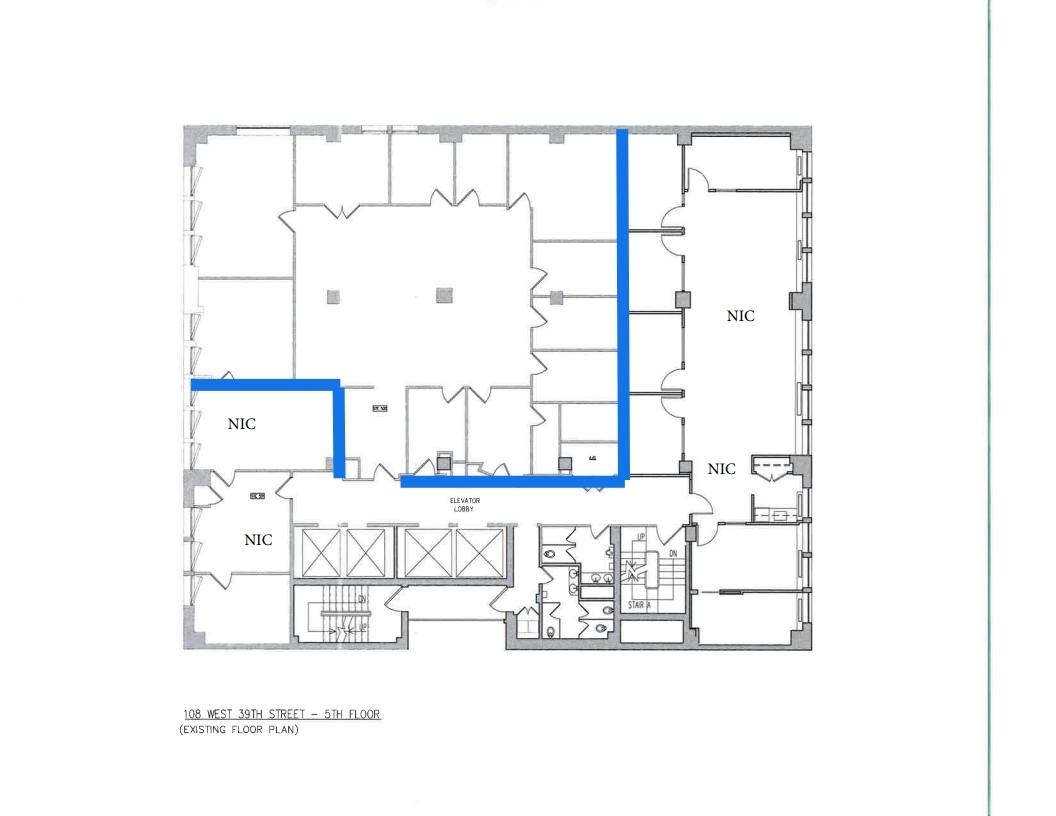
108 West 39th Street

Floor/Suite: 

Partial Suite 500

Size: 

5,469 RSF

Lease type:

Direct

Condition:

Built

Asking rent:

$48 PSF / $21,876 per month

  • Great light throughout space with multiple window lines.
  • Landlord will build/modify.
  • 108 West 39th Street
  • Between Sixth Avenue & Broadway
  • Owned by: Joseph P. Day Realty Corporation
  • Class: B
  • 118,949 Total RSF
  • 16 floors

Building Details

  • Ownership is in the process of upgrading the building lobby.

Noah Co. does not exclusively represent the space or building listed above.

As of 10-29-2025