View larger PDF Open PDF 

Your device does not support viewing of this PDF. Tap here to download it instead.

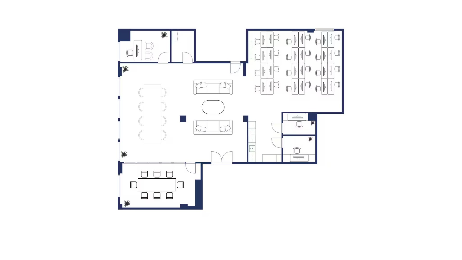
135 West 26th Street

Floor/Suite: 

Partial Suite 7A

Size: 

3,350 RSF

Lease type:

Direct

Condition:

Furnished

Asking rent:

$46 PSF / $12,842 per month

Virtual Tour:

Click for virtual tour

  • Bright and spacious 3,350 SF front-facing office in a wellmaintained Chelsea building.
  • Boasting 11’ ceilings, hardwood floors, and abundant natural light, this fully
    furnished space features a large bullpen, private office with boardroom, and a convenient wet pantry.
  • Enjoy modern amenities including window A/C, secure access control with remote viewing, and a professional, turn-key setup ready for immediate use.
  • 135 West 26th Street
  • between Avenue of the Americas Seventh Avenue
  • 60,000 Total RSF

Noah Co. does not exclusively represent the space or building listed above.

As of 09-4-2025