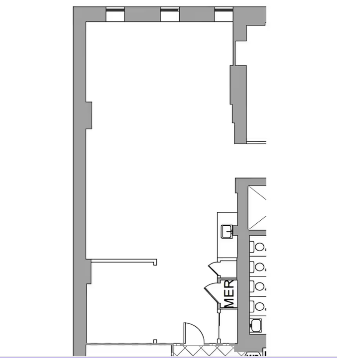
- Large open space
- 1 conference room
- Open area for 10-15 People
- Tenant controlled A/C 
- Hardwood flooring
- Stained light 3 windows facing north 
- Open pantry
276 Fifth Avenue | 2,132 RSF (Direct Lease)
276 Fifth Avenue
Floor/Suite:
Partial Suite 1005
Size:
2,132 RSF
Lease type:
Direct
Condition:
Built
Asking rent:
$57 PSF / $10,127 per month
- 276 Fifth Avenue (The Holland House)
- S/W/C West 30th Street
- Owned by: The Kash Group
- Class: B
- 199,578 Total RSF
- 11 floors
- Amenities: Lobby Attendant 24/7
Building Details
- 3 Passenger Elevators, 1 Freight Elevator
- Multi-stall common area restrooms
- Attended lobby from 7 am through 8 pm Monday to Friday, with after hour smart-key entry for 24 hour/7-day access
- Smartchoice - building’s IT service provider with duplicate POEs. Pilot Fiber, Spectrum and Verizon fiber also service the asset
- Capital Improvements - new corridors
- Nightly base cleaning not included in base rental
As of 09-16-2025
 
           
        %20(3).png?width=1920&height=1080&name=2%2c132%20SF%20-%20276%20Fifth%20Avenue%20(Partial%20Suite%201005)%20(3).png) 
            
            %20(1).png?width=1920&height=1080&name=2%2c132%20SF%20-%20276%20Fifth%20Avenue%20(Partial%20Suite%201005)%20(1).png) 
            
            %20(2).png?width=1920&height=1080&name=2%2c132%20SF%20-%20276%20Fifth%20Avenue%20(Partial%20Suite%201005)%20(2).png) 
            
            %20(4).png?width=1920&height=1080&name=2%2c132%20SF%20-%20276%20Fifth%20Avenue%20(Partial%20Suite%201005)%20(4).png)