View larger PDF Open PDF 

Your device does not support viewing of this PDF. Tap here to download it instead.

307 Fifth Avenue

Floor/Suite: 

Entire 17

Size: 

4,000 RSF

Lease type:

Sublease through 03/30/2027

Condition:

Furnished

Asking rent:

$65 PSF / $21,667 per month

Virtual Tour:

Click for virtual tour

  • Immediate Possession
  • Private outdoor rooftop.
  • Great light and views.
  • Fully furnished and wired.
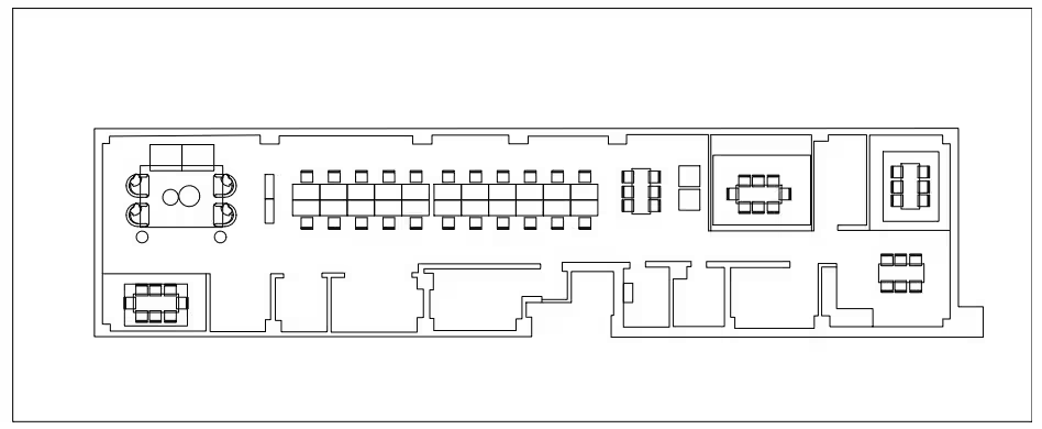
  • Built with 22 workstations, 3 conference rooms, a fully functioning pantry, and a lounge.
  • North facing with an unobstructed view of the Empire State Building
  • 307 Fifth Avenue
  • Between 31st & 32nd Streets
  • Owned by: Elijah Equities
  • Class: B
  • 60,648 Total RSF
  • 17 floors
  • Amenities: Lobby Attendant 24/7

Building Details

  • Each floor can be locked off by the tenant, has their own tenant-controlled AC unit and direct meter for electric.

Noah Co. does not exclusively represent the space or building listed above.

As of 11-25-2025