View larger PDF Open PDF 

Your device does not support viewing of this PDF. Tap here to download it instead.

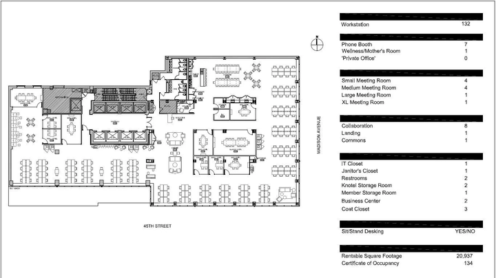
360 Madison Avenue

Floor/Suite: 

Entire 10

Size: 

20,937 RSF

Lease type:

Direct

Condition:

Raw

  • Raw Floor
  • Landlord will build with Fogarty Finger-Designed high-end finishes on behalf of a credit tenant (see building standard finishes attached)
  • 360 Madison Avenue
  • between East 45th and East 46th Streets
  • Owned by: Stawski Partners
  • Class: A
  • 370,000 Total RSF
  • 25 floors
  • Amenities: Roof deck / Terrace, Conference Center

Building Details

  • Designed by New York architects Cook + Fox, 360 Madison Avenue is a peaceful retreat in the heart of Midtown, located on Madison Avenue and 45th Street.
  • The building’s glass façade creates a visual lightness and clarity that follows through to the lobby, with its gray expanse of exposed concrete illuminated by narrow sconces.
  • On the upper floors, open plans encourage office size flexibility and customization.
  • Access to state-of-the-art, 45k SF amenity center across the 4th and 5th floors
  • Building features includes:
    • Glass curtain wall
    • Private terraces
    • Floor-by-floor tenant controlled air conditioning
    • First-class concierge attended lobby and internal messenger service
    • Directly metered power 
    • Advanced telecommunications
    • Advanced life safety systems
    • Card key elevator access
    • Direct operating pass-throughs
    • Privately owned and managed building
    • Convenient to Grand Central Terminal, Pennsylvania Station and Port Authority Terminal 

Noah Co. does not exclusively represent the space or building listed above.

As of 10-7-2025