View larger PDF Open PDF 

Your device does not support viewing of this PDF. Tap here to download it instead.

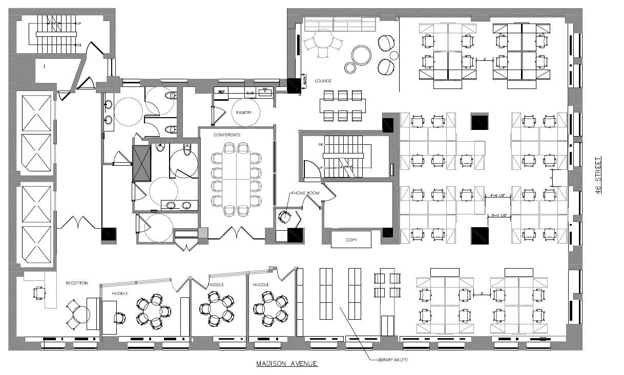
366 Madison Avenue

Floor/Suite: 

Entire 10

Size: 

7,150 RSF

Lease type:

Direct

Condition:

Built

  • Ownership will custom build the premises to tenant specifications
  • 366 Madison Avenue
  • corner of Madison Avenue and East 46th Street
  • Owned by: Sioni Group
  • Class: B
  • 95,942 Total RSF
  • 16 floors

Building Details

  • The property will feature a brand-new façade, windows, lobby, and elevators, along with amenities such as a roof deck, fitness and wellness facility, pickleball court, and golf simulator.

Noah Co. does not exclusively represent the space or building listed above.

As of 11-12-2025