515 Madison Avenue

Floor/Suite: 

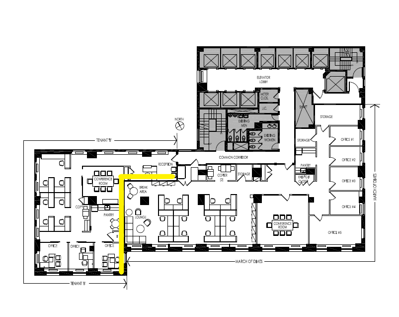
Partial 20

Size: 

5,023 RSF

Lease type:

Direct

Virtual Tour:

Click for virtual tour

No data available
  • 515 Madison Avenue (DuMont Building)
  • Corner of Madison Avenue and East 53rd Street
  • Owned by: GFP Real Estate
  • Class: A
  • 370,000 Total RSF
  • 42 floors
  • Amenities: Lobby Attendant 24/7

Building Details

  • 515 Madison Avenue, also known as the DuMont Building, is a 532-foot high, 42-story building at 53rd Street and Madison Avenue in Manhattan's Plaza District.
  • The building was built in Art Deco and neo-Gothic style by John H. Carpenter in 1932.
  • One of the building’s most distinctive features is a broadcasting antenna that traces back to the building’s role in the first television broadcasts of Allen B. DuMont's experimental television station W2XWV in 1938.
  • This Class A building's careful restoration of its renovated entrance and lobby in 2009 kept its beautiful architectural elements intact yet modernized for today's tenants.
  • Located just south of Central Park, this area is home to landmarks such as the New York City Center for performing arts, Carnegie Hall and Rockefeller Center.
  • This prime location provides access to a multitude of amenities, with a variety of dining options and world-renowned retail along Fifth Avenue.
  • With the E and M trains located in the building, the 6 train only a block away, and a multitude of other subways lines nearby, commuting has never been easier.

Noah Co. does not exclusively represent the space or building listed above.

As of 10-14-2020