View larger PDF Open PDF 

Your device does not support viewing of this PDF. Tap here to download it instead.

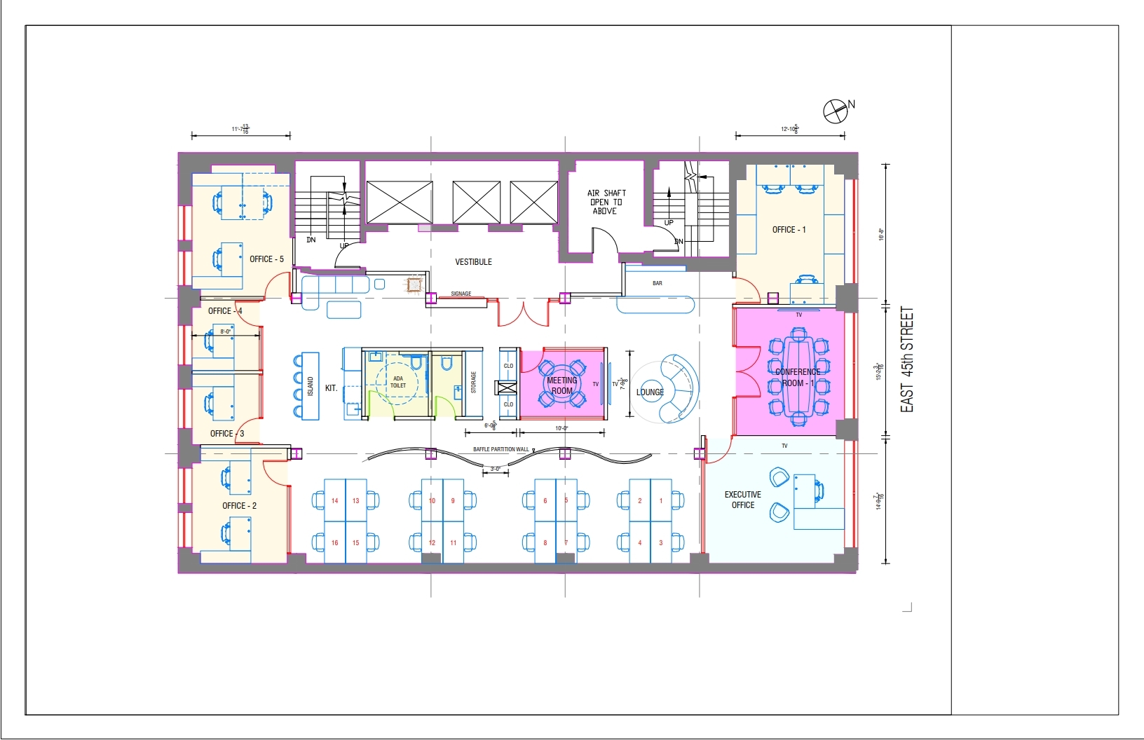
6 East 45th Street

Floor/Suite: 

Entire 16

Size: 

4,252 RSF

Lease type:

Direct

Asking rent:

$65 PSF / $23,032 per month

  • Boutique full floor, brand new high-end turnkey installation, brand new lobby and façade, new oversized windows, and tenant amenity fitness center in the lower level.
  • 6 East 45th Street
  • between Madison and Fifth Avenues
  • Owned by: Sioni Group
  • Class: B
  • 79,290 Total RSF
  • 19 floors
  • Amenities: Gym, Newly-renovated lobby, Lobby Attendant 24/7

Building Details

  • LOBBY: Brand new luxurious lobby with 24-hour attendant
  • ELEVATORS: New elevators featuring state-of-the-art design elements
  • FURNITURE: Can be provided
  • HVAC: New efficient VFR split system supplying both heating & cooling on each floor with
    multiple zones
  • WINDOWS: Brand new oversized windows on 3 sides
  • AMENITY: Private Fitness Center

Noah Co. does not exclusively represent the space or building listed above.

As of 02-5-2026