View larger PDF Open PDF 

Your device does not support viewing of this PDF. Tap here to download it instead.

655 Third Avenue

Floor/Suite: 

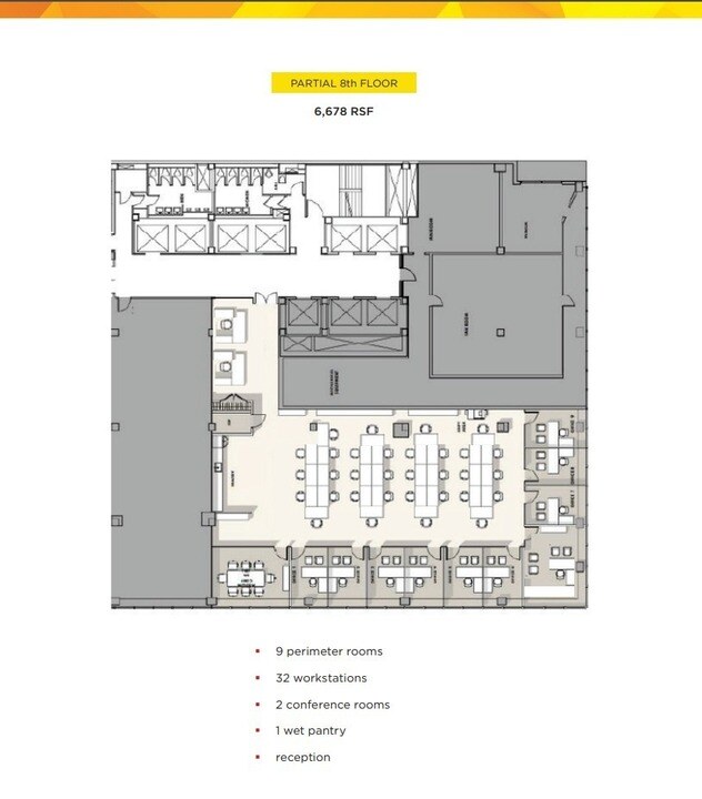
Partial 8

Size: 

6,678 RSF

Lease type:

Sublease through 07/30/2027

Condition:

Furnished

Asking rent:

$48 PSF / $26,712 per month

Virtual Tour:

Click for virtual tour

  • Turnkey office space, fully furnished & wired, plug and play, available for sublease.
  • Space built out with 9 offices, 2 conference rooms, 32 open seating area, wet kitchenette/pantry, & reception area.
  • Prime location with proximity to Grand Central Terminal and all MTA subway lines, Long Island Railroad and MetroNorth.
  • 655 Third Avenue
  • between East 42nd and 43rd Streets
  • Owned by: The Durst Organization
  • 425,000 Total RSF
  • Amenities: Roof deck / Terrace

Building Details

  • Well-maintained office buildings with excellent access to public transit continue to attract top-tier tenants.
  • The building’s LEED Gold certification underscores its sustainable features, including green roofs and double-glazed windows.
  • The Durst Organization’s portfolio along Third Avenue has leased out 60,000 square feet in February.
  • One block from Grand Central Terminal.
  • Renovated lobby includes a new concierge desk and turnstiles.
  • Green roofs and exclusive outdoor terraces.

Noah Co. does not exclusively represent the space or building listed above.

As of 03-5-2025