View larger PDF Open PDF 

Your device does not support viewing of this PDF. Tap here to download it instead.

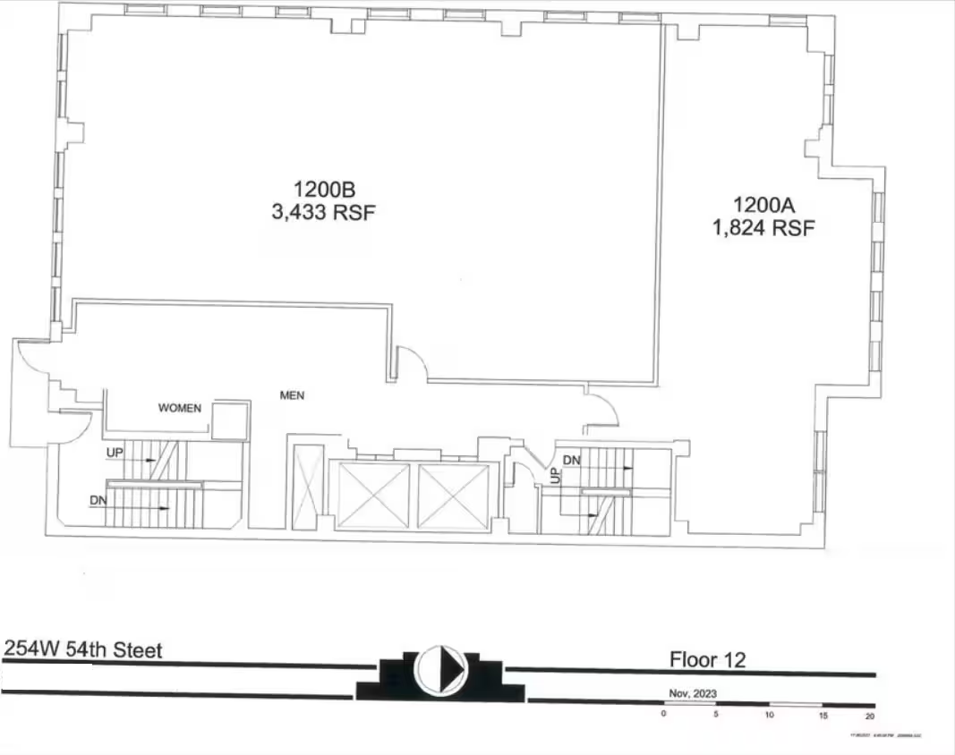
254 West 54th Street

Floor/Suite: 

Partial Suite 1200B

Size: 

3,433 RSF

Lease type:

Direct

Asking rent:

$48 PSF / $13,732 per month

  • Unit 1200B offers a beautifully finished corner space with polished concrete floors and exceptional natural light.

     

  • Its flexible layout makes it an excellent fit for organizations in entertainment, the arts, architecture, tech and other creative or professional fields.

     

  • The landlord is prepared to build out and deliver the space complete with standard furniture,

    wet pantry, and offices!

  • 254 West 54th Street (Studio 54 Building)
  • between Eighth Avenue and Broadway
  • Owned by: Allied Partners
  • Class: B
  • 82,966 Total RSF
  • 17 floors
  • Amenities: Lobby Attendant 24/7

Noah Co. does not exclusively represent the space or building listed above.

As of 02-23-2026