View larger PDF Open PDF 

Your device does not support viewing of this PDF. Tap here to download it instead.

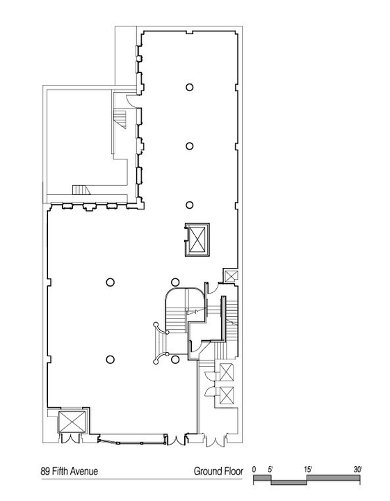
89 Fifth Avenue

Floor/Suite: 

Entire 1

Size: 

5,200 RSF

Lease type:

Direct

  • Previously occupied by Aritzia.
  • Available Feb 2026.
  • 10,200 sq ft over First & Second Floors, PLUS great storage basement.
  • 89 Fifth Avenue
  • between East 16th and 17th Streets
  • Class: C
  • 57,820 Total RSF
  • 11 floors
  • Amenities: Tenant Lounge, Newly-renovated lobby

Noah Co. does not exclusively represent the space or building listed above.

As of 10-3-2025